creado por Envés arquitectos, slp. 2012       

Reforma de vivienda en la calle Ventura de la Vega, Madrid, 2006.

 

Cliente: HYLOGUI S.A.

Área: 503 m2

Procedimiento: encargo privado

Estado: cancelado

 

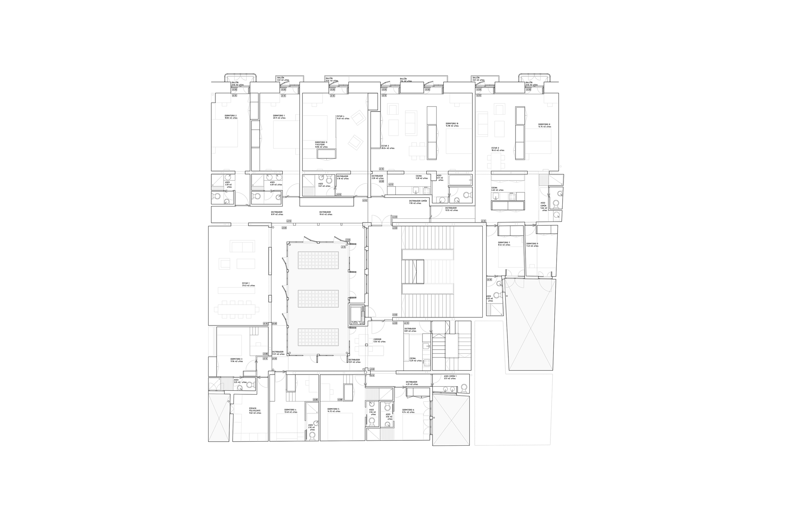
Se parte de un estado actual de una vivienda con dos espacios diferenciados e independientes. Se propone:
- Recuperar la vivienda, eliminando la diferenciación en estos dos espacios y unificar toda la vivienda.
- Se asume como prioritaria la eliminación de habitaciones interiores en la presente reforma, adquiriendo todas carácter de habitaciones exteriores.

Conseguimos dotar de unidad a la vivienda a través de un corredor volcado al patio principal que distribuye a los diferentes grupos habitacionales de la vivienda. Estos grupos habitacionales tratan de dar respuesta, mediante su diferente carácter, a las múltiples maneras contemporáneas de habitar que se puedan desarrollar en la vivienda.

 

foto1 /  plano1 /  plano2

/