creado por Envés arquitectos, slp. 2012       

Centro de iniciativa Empresarial, Córdoba 2007.

 

Cliente: Instituto Municipal de Desarrollo y Empleo de Córdoba

Superficie construida: 9.232,70 m2  PEM estimado: 4.403.473,74 euros

Procedimiento: concurso

Estado: Accesit

 

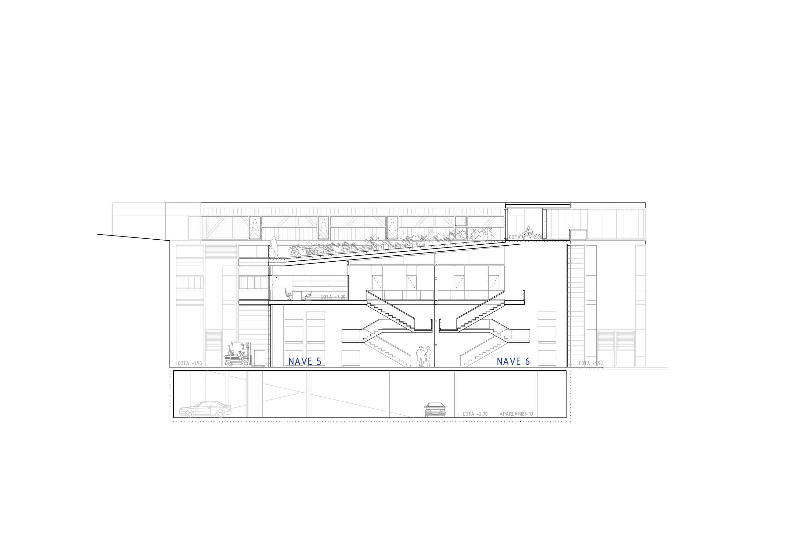
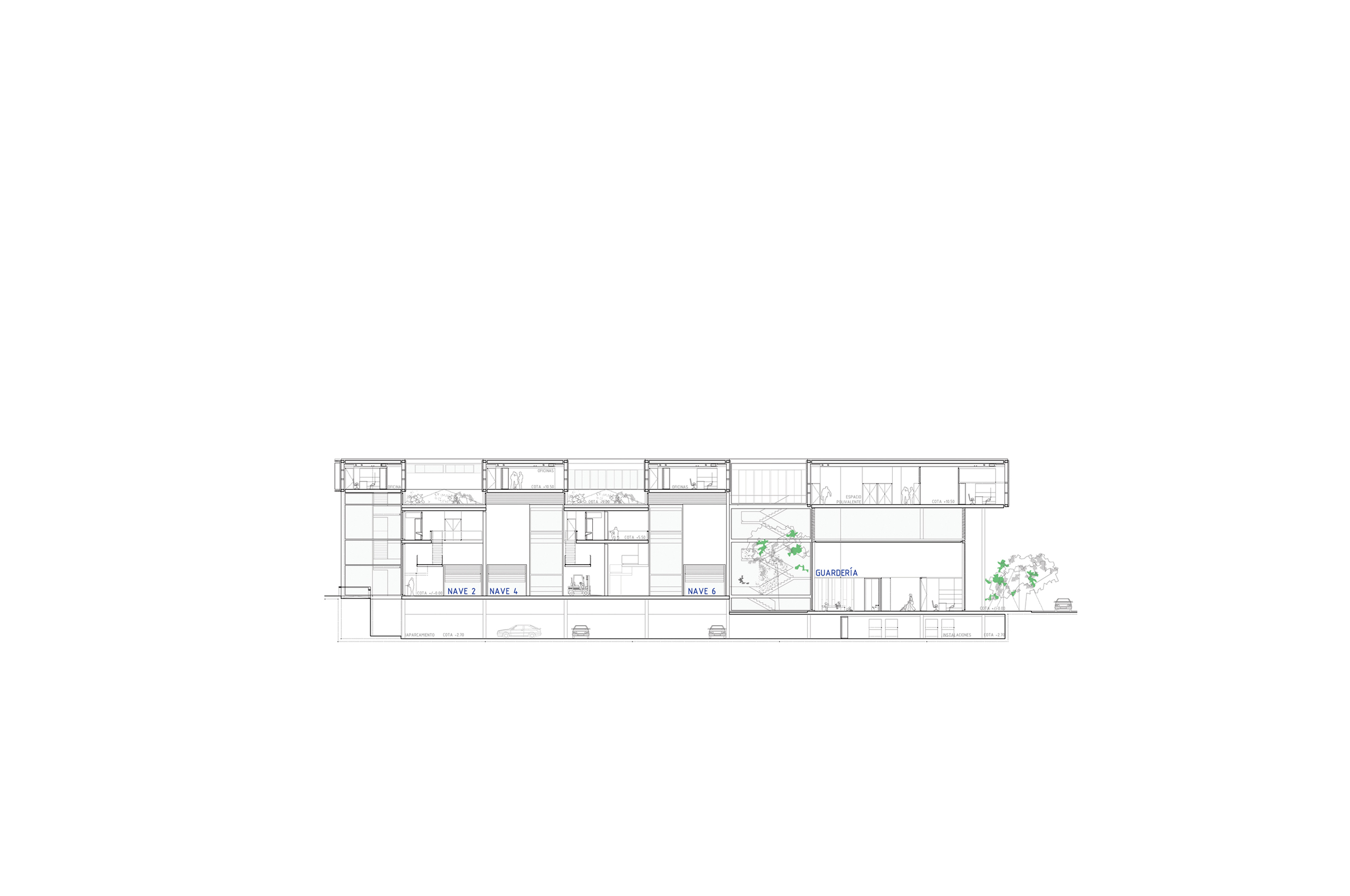
El tejido en el que se dispondrán los Centros tiene una importante densidad acorde a los usos que en él se disponen y aunque se sitúan en uno de los límites del polígono, entendemos que uno de los objetivos a la hora de desarrollar este proyecto debe ser facilitar el rápido reconocimiento de los ciudadanos que accedan a éstos centros, así como generar una imagen identificable. Para conseguir esto, planteamos que ésta imagen sea producida por la propia expresión formal de las oficinas y locales, de modo que, dada su disposición elevada, se entiendan como cintas de color perceptibles desde múltiples lugares.
Cintas serpenteantes que no solo manifiesten los criterios de ordenación que establece la normativa urbanística, sino que también configuran una seña de identidad propia, visible tanto por los ciudadanos que accedan a los centros como por el conjunto de usuarios de la cercana carretera antigua de Madrid.

 

foto1 /  foto2 /  foto3 /  foto4 /  foto5 /  plano1 /  plano2 /  plano3 /  plano4 /  plano5

/