creado por Envés arquitectos, slp. 2012       

Museo de Arquitectura y Urbanismo, Salamanca 2007.

 

Cliente: Ministerio de la Vivienda

Superficie construida: 4.707,09 m2  PEM estimado: 5.641.129,31 euros

Procedimiento: concurso

Estado: 1º accesit

 

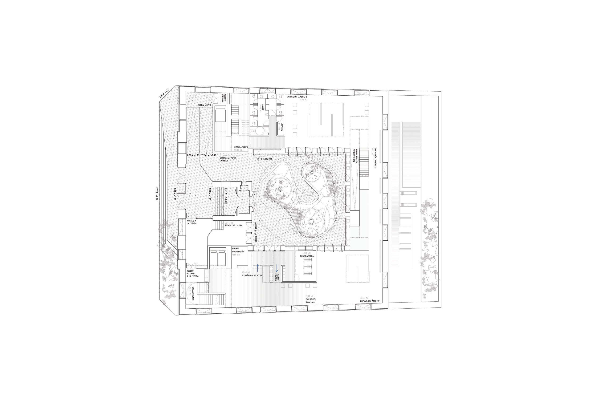
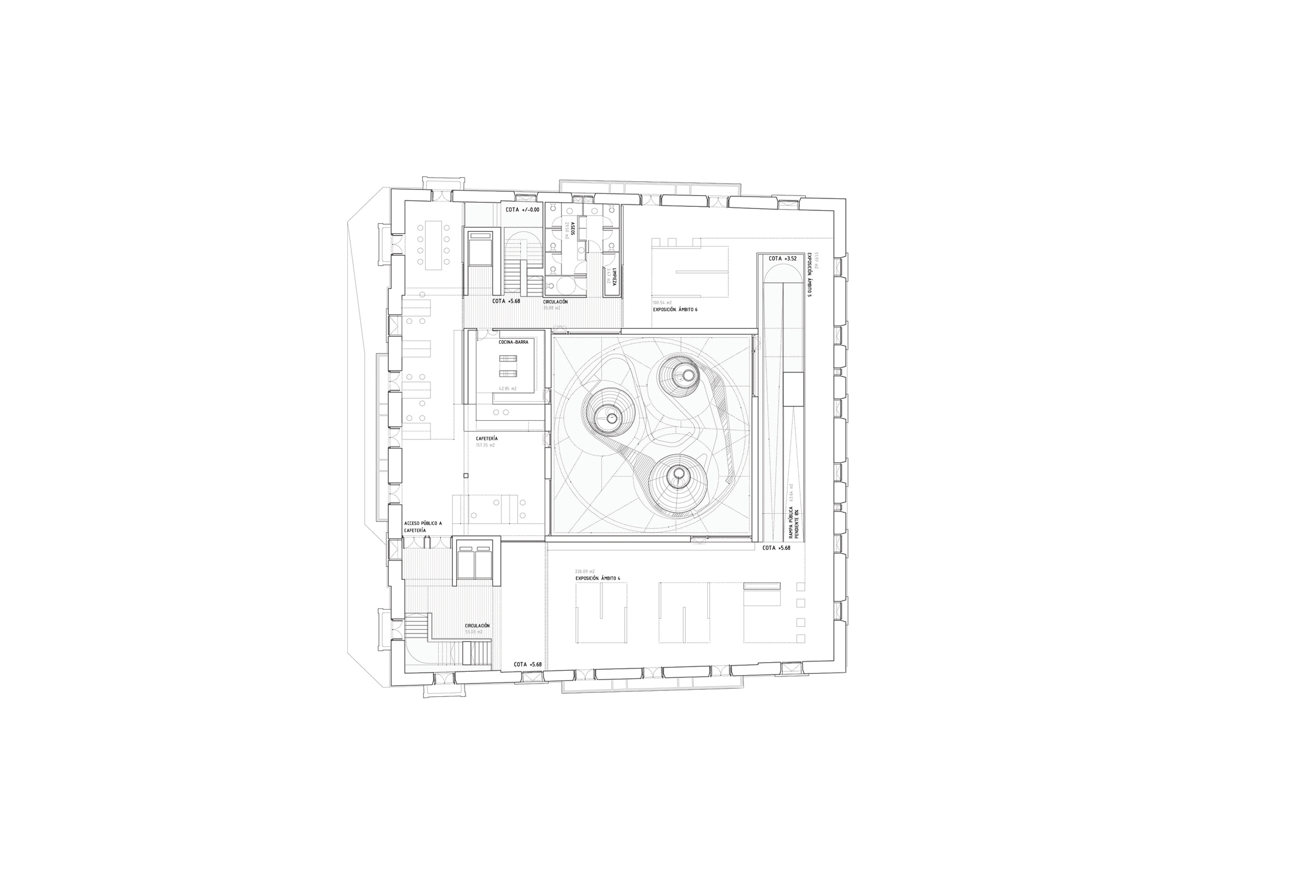
Una lectura del edificio existente del Banco de España nos descubre un espacio como nexo de unión entre el ámbito urbano en el que se sitúa (la Plaza de los Bandos, cercana a la Plaza Mayor) y sus ámbitos interiores. Ése espacio es el patio. Planteamos convertir este patio en una extensión de los espacios públicos de la ciudad, un espacio recogido, cuyas cualidades lo conviertan en un lugar transgeneracional que los propios ciudadanos construirán con su propia historia.
Para dotar de éstas cualidades al Patio, creemos necesario la ejecución de un sistema flexible que posibilite el disfrute de éste espacio en cualquier momento del año. Proponemos cubrir el patio a la cota 14,56 m levantándonos 50 cm de la cota de arranque de la cubierta existente. Ésta cubrición es "calada" por 3 estructuras ligeras que cuelgan de ella, a modo de grandes columnas vegetales. Éstas columnas posibilitarán el acondicionamiento del patio mediante sistemas naturales de climatización. El funcionamiento de éstas columnas varía en función de la estación del año.

 

foto1 /  foto2 /  foto3 /  plano1 /  plano2 /  plano3 /  plano4 /  plano5 /  plano6

/