creado por Envés arquitectos, slp. 2012       

90 viviendas en el sector "San Francisco Javier VII", Madrid 2008.

 

Cliente: Empresa Municipal de la Vivienda

Área de actuación: 16.491,05 m2

Procedimiento: concurso

 

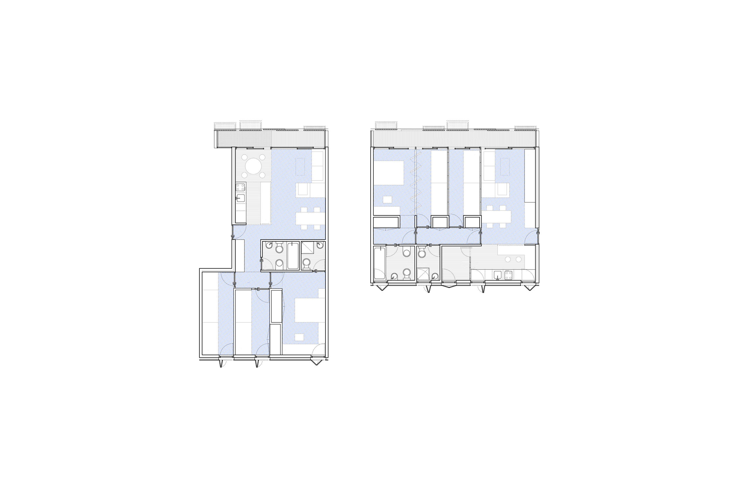
Proponemos una sencilla macla de dos cuerpos, reafirmando el carácter de bloque que establece el PERI de San Francisco Javier. Y en el encuentro de los dos, un vacio donde se represente la convivencia vecinal, y que permite que todos los espacios dispongan de fugas visuales. Cada uno de los cuerpos se relaciona de la misma manera con el exterior. Por un lado se protegen del sol, del tráfico y de intrusos (mediante una sistema de contraventanas plegables de tableros fenólicos que, cuando se cierran, se integran con la fachada ventilada). Por otro se abren buscando la luz (grandes aberturas a norte y espacios corredores al exterior con lamas de protección, que posibilitan en invierno una cámara a modo de colchón térmico). Planteamos dos tipos distintos para las viviendas de cada uno de los cuerpos: en uno, una banda interior de espacios de servicio separa los estares de los dormitorios; en otro, la banda de servicios se "pega" al exterior de menor desahogo visual, mientras que estares y dormitorios se abren al otro frente, mejor iluminado.

 

 

                                                                                                 foto1 /  foto2 /  foto3 /  plano1 /  plano2 /  plano3

/