creado por Envés arquitectos, slp. 2012       

Vivienda unifamiliar, Arroyomolinos (Madrid), 2008.

 

Cliente: Privado

Superficie construida: 227,79 m2

Procedimiento: encargo privado

Estado: en proceso

Colaboradores: Ondarreta Gas, ODV arquitectos técnicos, Tirititres ingenieros

 

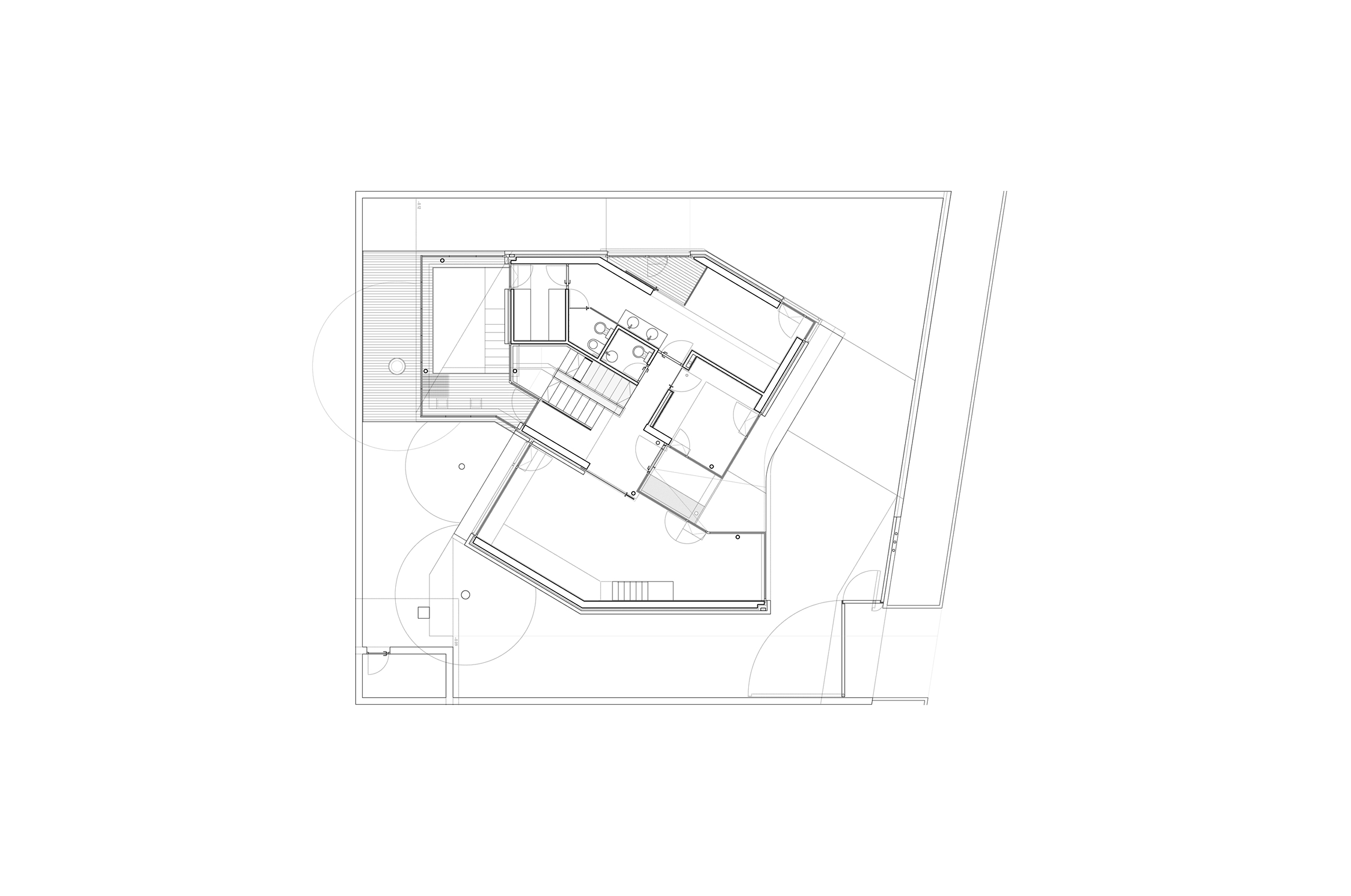
La edificación se presenta como un volumen claro de ladrillo cara vista Klinker blanco donde la geometría de la cubierta (un único gesto que se pliega sobre si mismo a modo de "espiral") determina tanto la forma de la edificación como su distribución del programa. Se ha limitado la cubierta a dos inclinaciones (10º y 20º). Se realiza un voladizo de la cubierta en el frente Norte, por donde se realiza el acceso, coincidiendo con el punto mas bajo de la vivienda. A esta fachada se abren la cocina, el salón y la habitación principal. En planta primera, aparece un volumen acristalado a modo de mirador, que alberga un pequeño estudio.
El programa residencial incorpora una piscina interior, cuyo cerramiento interior-exterior estará formado por paneles de vidrio laminar practicables móviles, que permitan hacer funcionar la citada piscina como un espacio exterior cubierto.

 

foto1 /  foto2 /  foto3 /  plano1 /  plano2 /  plano3 /  plano4 /  plano5

/