creado por Envés arquitectos, slp. 2012       

Rehabilitación de vivienda unifamiliar, San Vicente de Alcántara (Badajoz), 2009.

 

Cliente: Privado

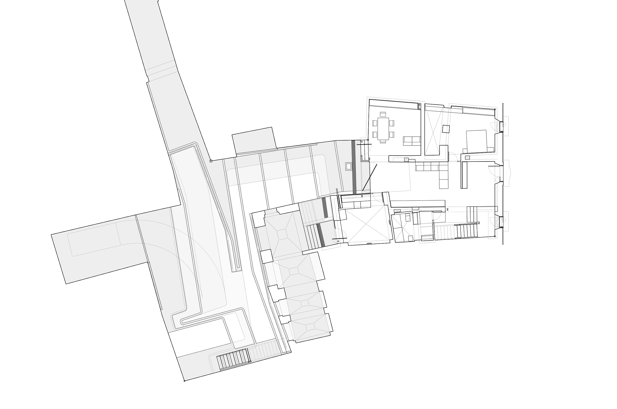
Superficie construida: 670,68 m2

Procedimiento: encargo privado  Estado: finalizado

Empresa constructora: Construcciones Jose Jorge

 

Un viernes de finales de Febrero, en San Vicente de Alcántara, encontramos una vieja casa, como una guapa señora de 60 años que se ha pasado con los liftings. Sin embargo aparenta no haber tenido una vida fácil. Probablemente se casó joven con quién, a la postre, sería su dueño. Los hijos llegaron tarde, y su figura nunca volvió a ser la misma. Su dueño lo intentó todo: operaciones de estética, reducciones de estómago, implantes de silicona… cuando el dueño se dio cuenta de que no la quería, se fué.Esta señora ha conocido a alguien. Y resulta ser nuestro cliente. Actuar como cirujanos. Arte cisoria. Quitar lo que sobra. Cuidar lo valioso, como el que cuida una planta: sol, agua (con moderación), una poda adecuada, una buena base… Y poco a poco empezamos a ver los resultados. Parece recuperar un antiguo esplendor perdido.

 

plantabaja.pdf    plantaalta.pdf    alzados.pdf    secciones.pdf

 

foto1 /  foto2 /  foto3 /  foto4 /  foto5 /  foto6 /  foto7 /  foto8 /  foto9 /  foto10 /  foto11 /  foto12 /  foto13 /  foto14 /  foto15 /  foto16 /  p01 /  p02 /  p03 /  p04

/