creado por Envés arquitectos, slp. 2012       

Crematorio de mascotas, Alcorcón (Madrid),2011.

 

Cliente: Cremascota S.L.

Superficie construida: 190,41 m2

Procedimiento: encargo privado  Estado: finalizado

Empresa constructora: Icercasa construcciones S.L.

Colaboradores: ODV arquitectos técnicos, Indama ingenieros, Tirititres ingenieros

 

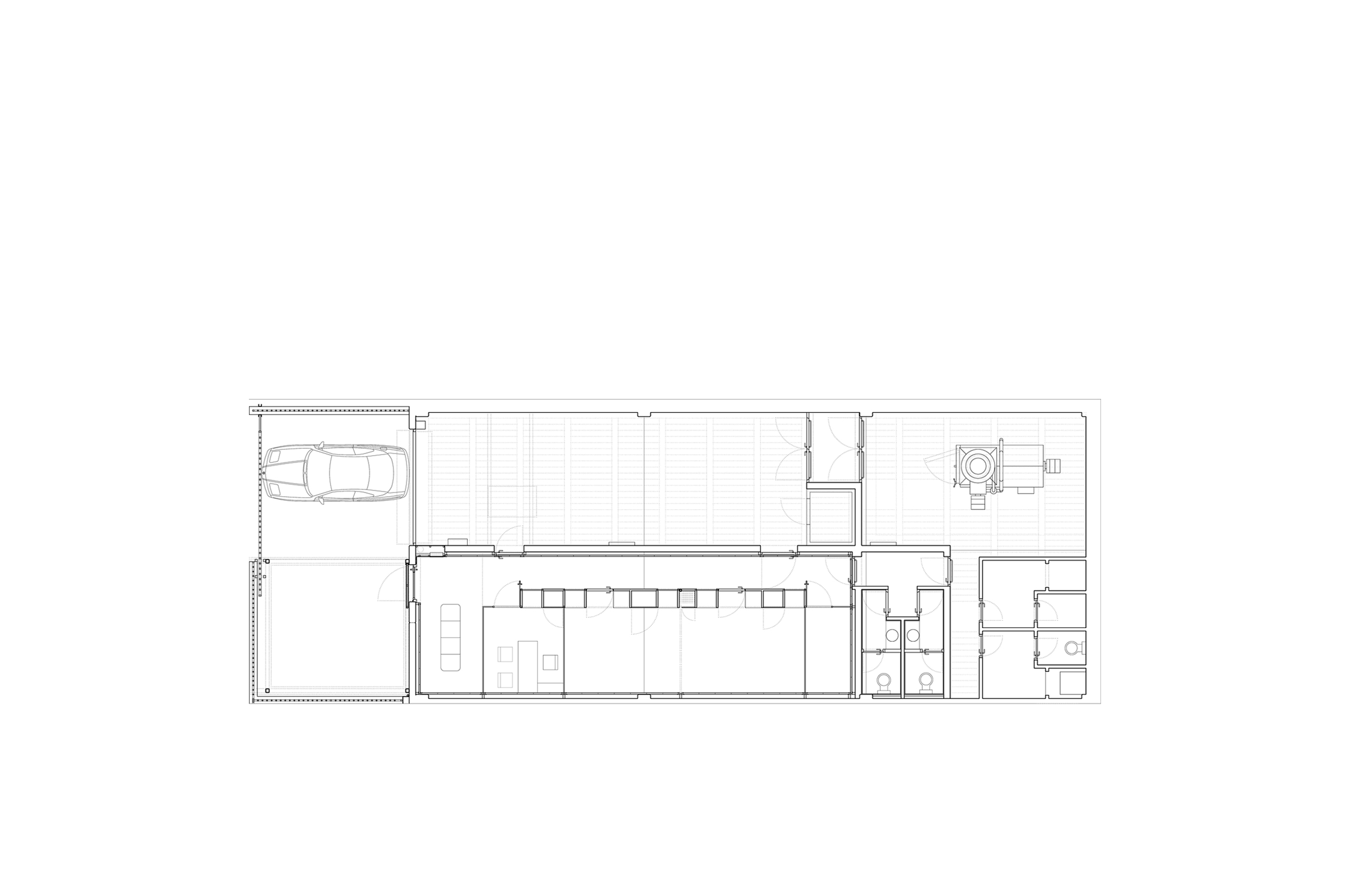
El proyecto consiste en la adaptación de una nave industrial para uso de crematorio de mascotas. El proyecto propone una compartimentación general basada en la distinción entre un espacio dedicado a las funciones de cremación de mascotas (sala de preparación, sala de horno crematorio, aseo y vestuario del personal, y cuarto de residuos) y otro espacio vinculado a la atención al cliente (despacho de información, salas de espera y aseos públicos), buscando un ambiente cálido y adecuado al trato del cliente basado en un tratamiento continuo de los paramentos y un único elemento "mueble" que integra todos los elementos de compartimentación. Todo el programa funcional se desarrolla en una única planta.

 

www.cremascota.com

 

foto1 /  foto2 /  foto3 /  foto4 /  foto5 /  plano1 /  plano2 /  plano3

/