creado por Envés arquitectos, slp. 2012       

Vivienda unifamiliar, Valleruela de Pedraza (Segovia), 2011.

 

Cliente: privado

Superficie construida: 320,56 m2

Procedimiento: encargo privado  Estado: finalizado

Empresa constructora: Construcciones Luisma y Jose

Colaboradores: Luis Clemente (arquitecto técnico), Tirititres ingenieros, Ondarreta Gas

 

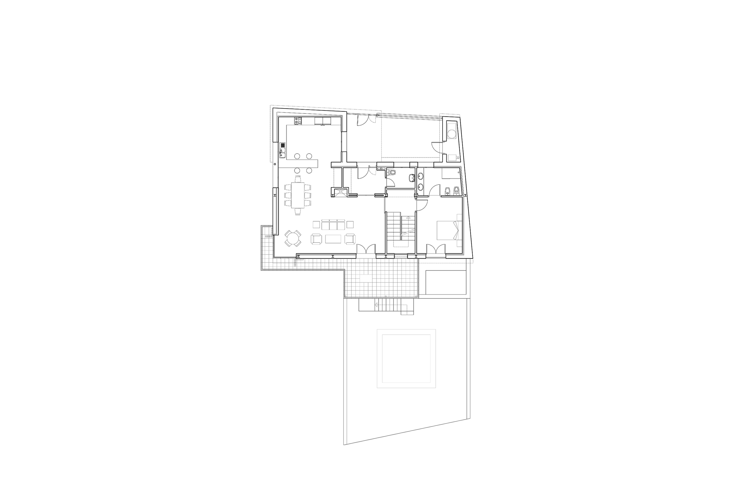
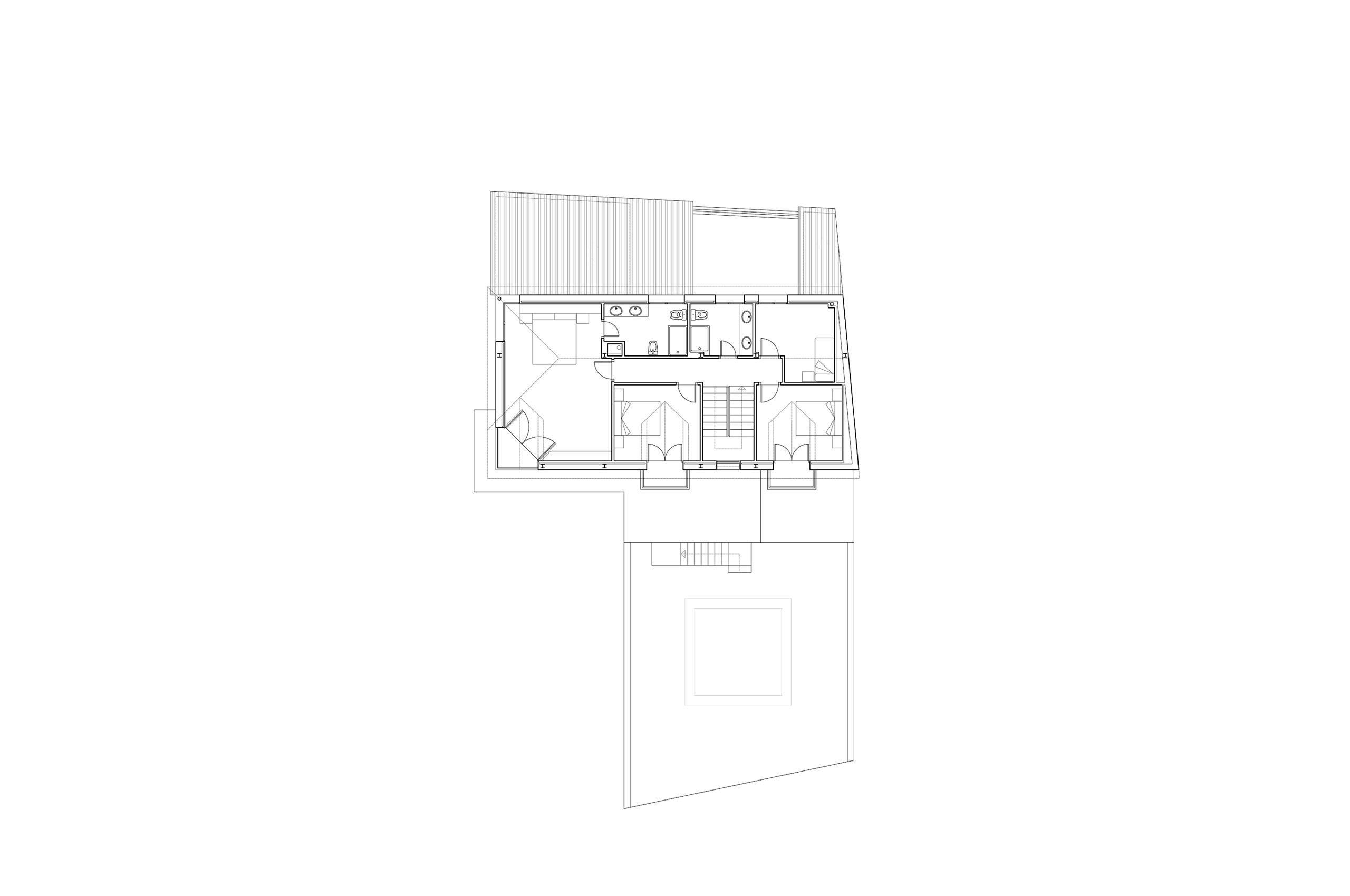
Se trata de una vivienda unifamiliar situada en el casco urbano de la localidad segoviana de Valleruela de Pedraza, adosada a una edificación residencial en su frente Este y con un pequeño jardín en su frente Sur. La parcela tiene una fuerte pendiente en el sentido Norte – Sur, posibilitando de este modo la iluminación y ventilación de los espacios bajo-rasante. Tiene una altura de dos plantas (Baja + Primera) sobre la rasante de acceso de la C/ Barrio Alto, y una planta bajo dicha rasante. La disposición en la parcela y la posición de los diferentes espacios y elementos constructivos ha sido determinada para un óptimo rendimiento funcional y climático, respetando los condicionantes urbanísticos.

 

 

 

foto1 /  foto2 /  plano1 /  plano2 /  plano3 /  plano4 /  plano5 /  plano6 /  plano7

/