creado por Envés arquitectos, slp. 2012       

55 Viviendas para Mayores en Intxaurrondo, Donostia, 2012.

 

Cliente: Entidad Pública Empresarial de Viviendas - Donostiako Etxegintza

Superficie construida: 5.463,73 m2 Concurso: En proceso de adjudicación

Colaboradores: ODV arquitectos técnicos, Indama ingenieros

 

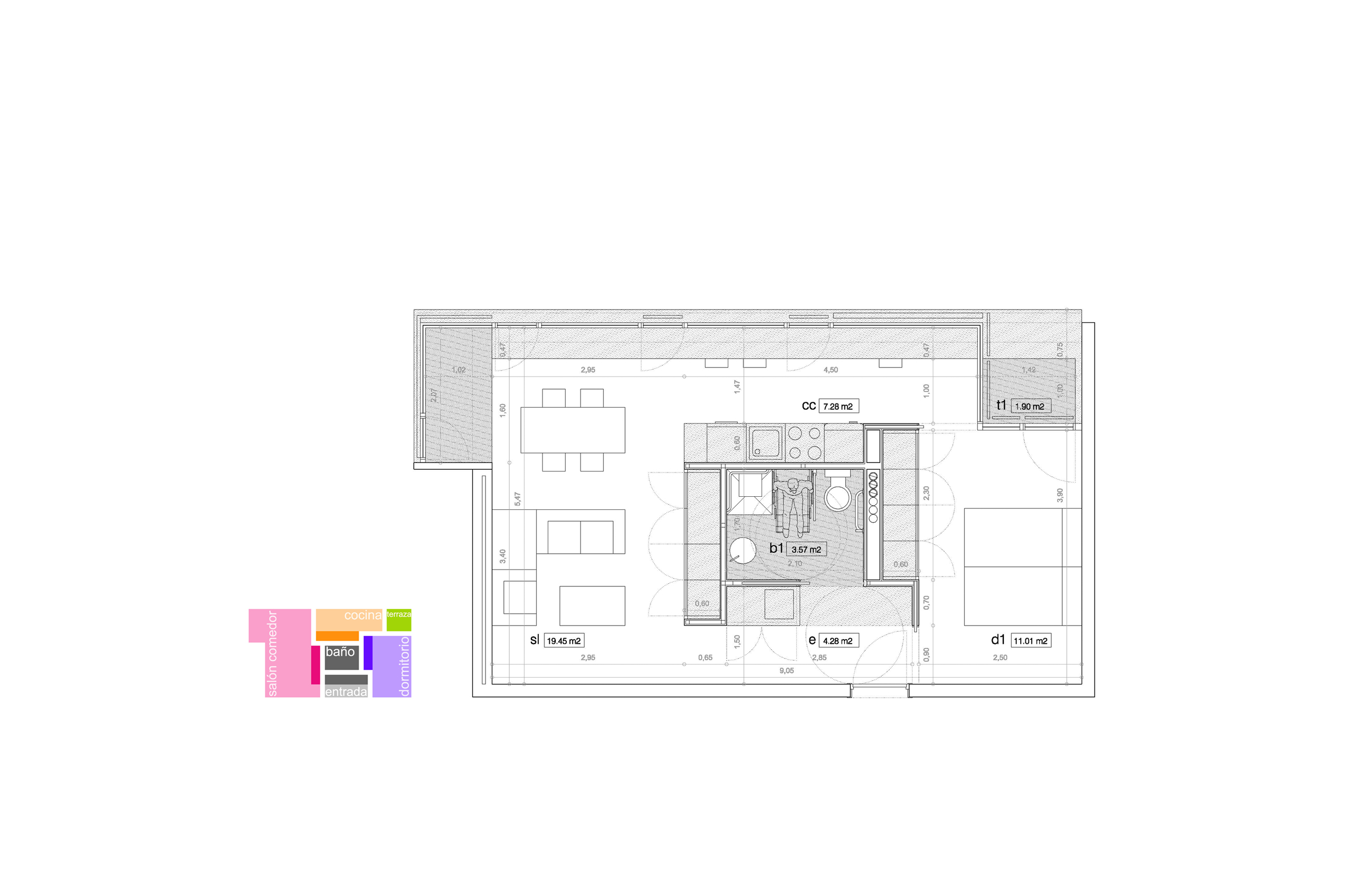
Proponemos una vivienda de 45 m2 útiles para mayores como espacio continuo, flexible y saludable, basándonose en dos elementos fundamentales:
- Mueble 1. Un volumen unitario y compacto que incorpora los espacios servidores de la vivienda (aseo), las necesidades de almacenaje de sus usuarios (mobiliarios de cocina, dormitorio y salón-comedor) y los elementos de cierre (mediante dos puertas correderas).
- Mueble 2. Un elemento que recorre la fachada de la vivienda y que gestiona su relación con el exterior, permitiendo una vista panorámica desde todas las estancias de la vivienda y que se intensifica en dos huecos verticales.

 

Buscando la máxima eficacia en cuanto a los núcleos de comunicación vertical, sin restar calidad a la vivienda descrita proponemos una agrupación de 4 viviendas por planta. Dividimos el programa en tres piezas de altura Planta Baja+4 que se adaptan de forma pormenorizada a la topografía y que se van girando buscando las mejores orientaciones, generando una plaza y una mejor integración de los edificios dentro del conjunto urbano.

 

foto1 /  foto2 /  foto3 /  foto4 /  foto5 /  plano1 /  plano2 /  plano3 /  plano4 /  plano5 /  plano6 /  plano7 /  plano8 /  plano9

/