creado por Envés arquitectos, slp. 2012       

Reforma de local para Asesoría 10 en Alcorcón, 2013.

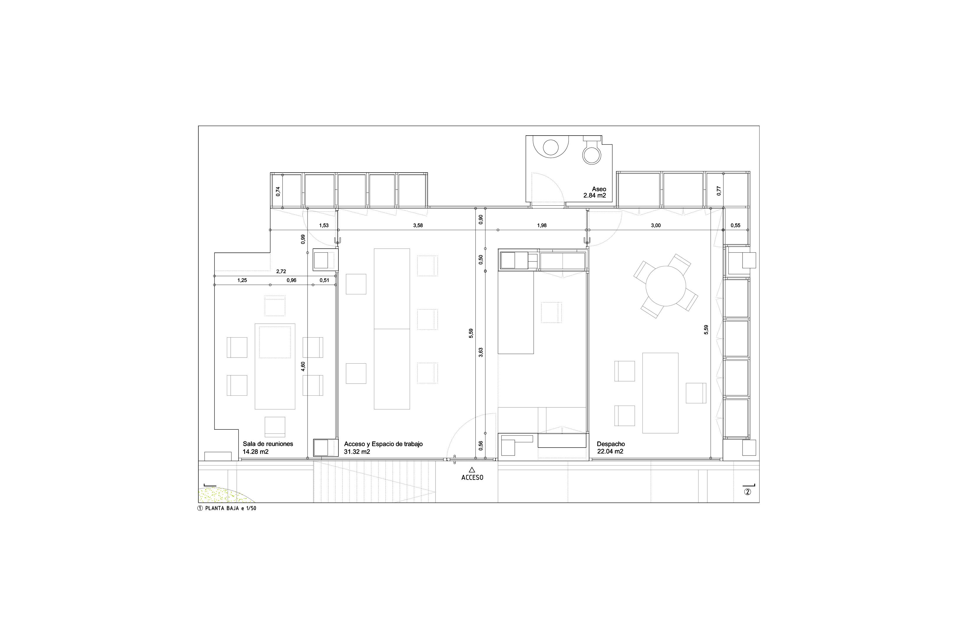
Cliente: Asesoría 10 Localización: Oslo nº2, Alcorcón (Madrid) Estado: Ejecutado Superficie: 90 m2 Colaboradores: Domingo Ruiz (empresa constructora Construruz), Eduardo F. Rodrigo (Estudio Diseño Único) 

 

El proyecto consiste en la adecuación de un local como la primera sede de la franquicia de reciente creación "Asesoría 10". Buscamos que los conceptos que representa la franquicia se vean reflejados en el espacio físico en el que se desarrolla la actividad:
1. Fortaleza. La franquicia la compone uno de los mayores grupos asesores de la Comunidad de Madrid, por lo que el local debe reflejar claridad y seguridad. Realizamos una distribución del espacio rotunda y clara, estructurado en tres espacios: recepción / zona de trabajo, reuniones y despacho. Dicha distribución se articula a traves de un único elemento mueble rojo que incorpora la recepción y funciona como hito que recibe y orienta al cliente.
2. Transparencia. El local se presenta hacia al exterior como reflejo de la actividad que en él se desarrolla mediante grandes paños de vidrio laminado.
3. Cercanía. En contraste con el caracter abstracto del contendor, un mobilario de madera que amabilice la relación del cliente con la asesoría.
4. Innovación. Buscamos un espacio de trabajo "sin papeles". Desarrollamos un mueble perímetral blanco, totalmente integrado con el espacio, que recoga los documentos impresos sin interferir en el funcionamiento diario de la asesoría.
5. Universalidad. El modelo debe poder ser aplicado a las próximas sedes de la franquicia, por lo que tanto la elección de los sistemas constructivos como la señalética e identidad corporativa deben garantizar una flexibilidad en su aplicación a diferentes condicionantes funcionales y espaciales.

 

foto1 /  foto2 /  foto3 /  foto4 /  foto5 /  foto6 /  foto7 /  foto8 / 

/