creado por Envés arquitectos, slp. 2012       

Restaurante, Discoteca, Sala de Fiestas y Convenciones JOWKE, Alcorcón, Madrid, 2017

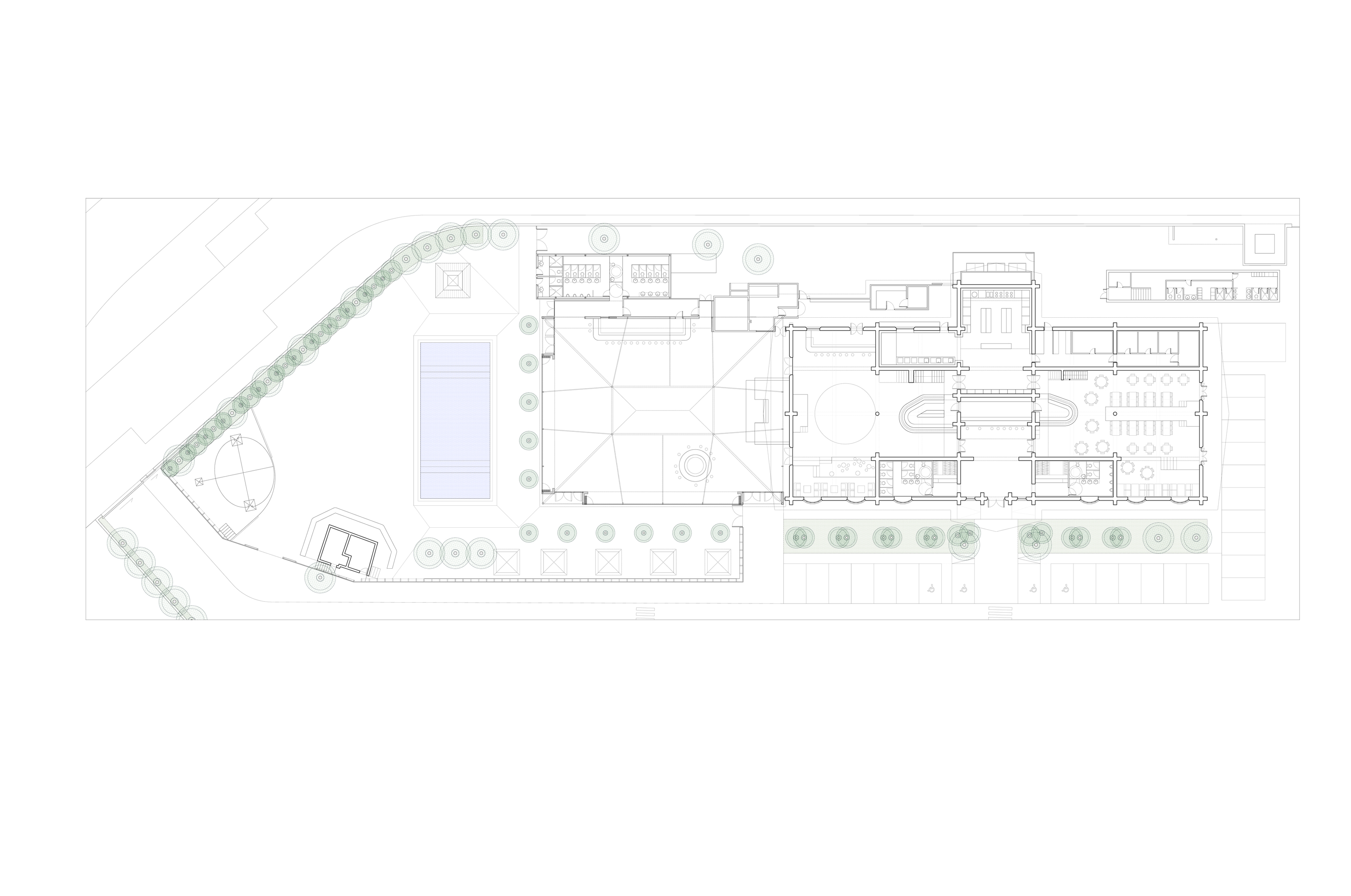
Cliente: Horizontal Express, S.L.  Colaboradores: Indama Ingenieros (instalaciones), Edilizia Aplicada (estructuras), Carlos Prieto y Carlos San José (Dirección de Ejecución, CSS y Asistencia de obra), fotos cortesía de Timing Publicidad.   Superficie construida: 2.628 m2c

 

El proyecto consiste en la reforma parcial de edificaciones existentes para su adecuación a los usos de restauración, discoteca y convenciones. La edificación más representativa del conjunto objeto de reforma es una construcción de madera (tipo cabaña canadiense) que data del año 1992 cuya estructura y parte del cerramiento se ejecutó con troncos de madera de pino de diámetro medio 30 cm., con una planta baja y entreplanta. El objetivo de la actuación es hacer visible el valor del sistema constructivo, limpiando los elementos secundarios que existían e incorporando aquellos necesarios para la actividad que en ella se va a desarrollar. Por otro lado existe una edificación anexa exterior de estructura metálica ligera anexa a la construcción principal que se acondiciona, manteniendo su carácter ligero y abierto al exterior. Por último se delimita un ámbito exterior de urbanización de la parcela con viario, aparcamiento, áreas peatonales y ajardinadas.

 

foto1 /  foto2 /  foto3 /  foto4 /  foto5 /  foto6 /  foto7 /  foto8 /  foto9 /  foto10 /  foto11 /  foto12 / 

/